










あり
6DK物件 西条市 愛媛県
読み込み中...
概算合計(諸費用込み): $112,573
5 閲覧
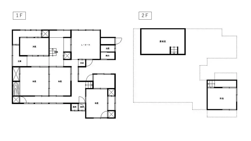
愛媛県西条市大町に位置する6DKの物件です。敷地面積は337.40㎡、建物面積は140.18㎡の木造建築で、広々とした居住空間を提供します。バスルームは1箇所完備されています。 本物件は商業地域に指定されており、住居としての利用に加え、店舗やオフィスとしての多角的な活用も可能です。西条市の中心部に近く、生活利便性も良好です。多様なニーズに対応できるポテンシャルを秘めています。
物件詳細
建築年
Unknown
寝室
6
構造
木造
建物面積
140.18 m²
土地面積
337.4 m²
土地権利
所有権
用途地域
商業地
階
2
駐車場
—
民泊のしやすさ
可能性が高い
最寄り駅
空港
温泉
スーパー
コンビニ
病院・クリニック
間取り図

出典:掲載元サイトを見る
読み込み中...
概算合計(諸費用込み): $112,573
5 閲覧
あり
...
