











あり
5DK物件 浅口市 岡山県
読み込み中...
概算合計(諸費用込み): $18,841
9 閲覧
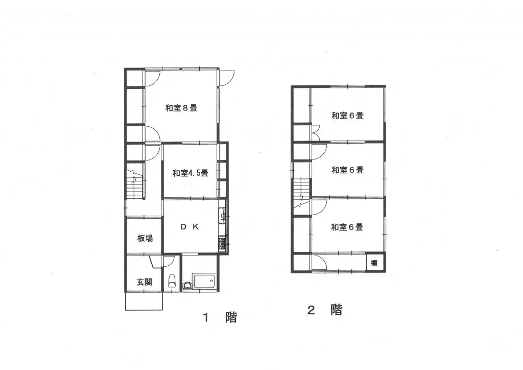
本物件は岡山県浅口市寄島町に位置する、木造構造の5DK住宅です。延床面積は111.82㎡、敷地面積は93.28㎡を有し、1957年に建築されました。浴室は1箇所完備しています。 広々とした間取りは、家族での居住や多目的利用に適しています。築年数は経過していますが、伝統的な木造建築の趣があり、リノベーションにより現代的な快適性を加えることが可能です。静かな住環境での暮らしを求める方に最適です。
物件詳細
建築年
1957
🔴
Pre-1981 seismic standard
寝室
5
構造
木造
建物面積
111.82 m²
土地面積
93.28 m²
土地権利
所有権
用途地域
住宅地
階
2
駐車場
—
民泊のしやすさ
不明
最寄り駅
空港
温泉
スーパー
コンビニ
病院・クリニック
間取り図

出典:掲載元サイトを見る
読み込み中...
概算合計(諸費用込み): $18,841
9 閲覧
あり
...
