




あり
7DK物件 紀北町 三重県
読み込み中...
概算合計(諸費用込み): $24,056
7 閲覧
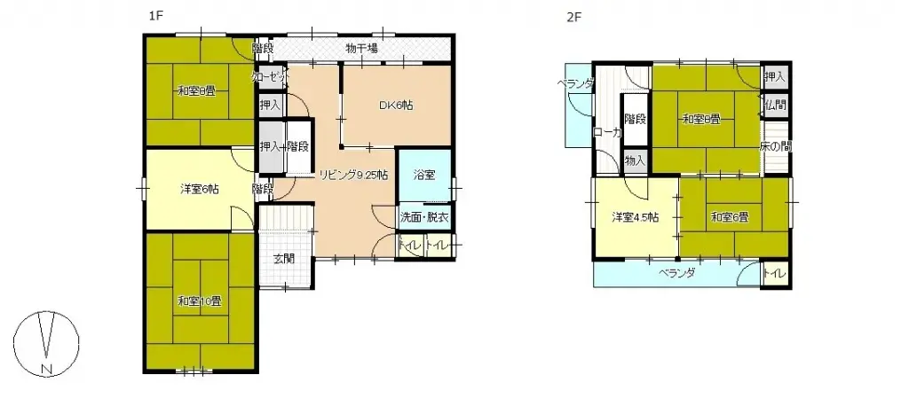
この物件は、三重県北牟婁郡紀北町長島に位置する木造2階建ての一戸建てです。延床面積129.41㎡、敷地面積112.07㎡の7DKの間取りで、家族での居住に適した十分な空間を提供します。1972年築ですが、堅牢な造りが特徴です。 周辺は静かな住宅地であり、日々の生活に必要な施設へのアクセスも良好です。バスルームは1箇所ですが、間取りの柔軟性を活かし、居住者のニーズに応じた改修も検討可能です。自然豊かな環境で、落ち着いた生活を送りたい方におすすめです。
物件詳細
建築年
1972
🔴
Pre-1981 seismic standard
寝室
7
構造
木造
建物面積
129.41 m²
土地面積
112.07 m²
土地権利
所有権
用途地域
住宅地
階
2
駐車場
—
民泊のしやすさ
不明
最寄り駅
空港
温泉
スーパー
コンビニ
病院・クリニック
間取り図

出典:掲載元サイトを見る
読み込み中...
概算合計(諸費用込み): $24,056
7 閲覧
あり
...
