



















あり
4LDK物件 中津川市 岐阜県
読み込み中...
概算合計(諸費用込み): $116,160
4 閲覧
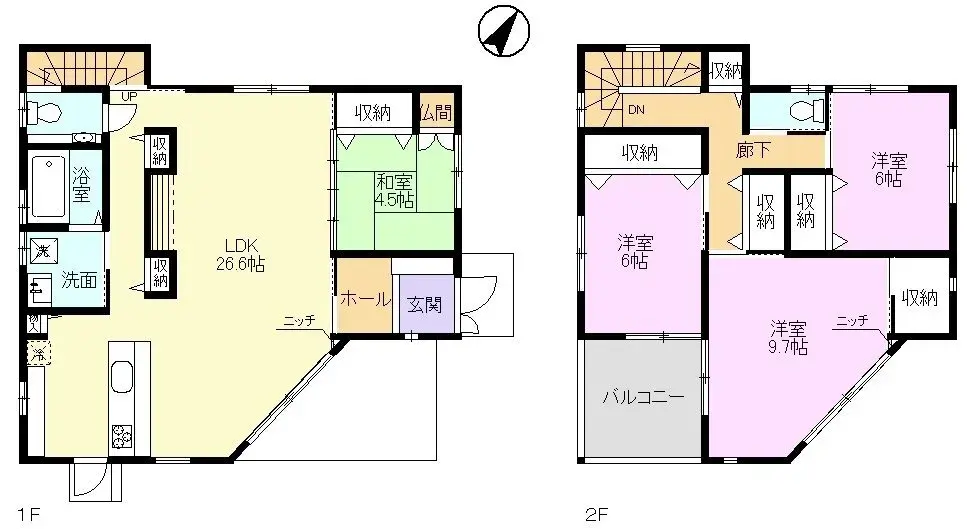
この物件は、木造2011年築の4LDK住宅です。建物面積は127.52㎡、敷地面積は417.24㎡と、ゆとりのある空間を提供します。バスルームは1箇所完備されており、日々の生活に必要な設備が整っています。 岐阜県中津川市に位置し、閑静な住環境が魅力です。広々とした敷地は多目的に利用可能で、ガーデニングや駐車スペースとしても十分な広さを確保しています。築年数が比較的新しく、状態の良い住宅で、安定した居住が期待できます。
物件詳細
建築年
2011
寝室
4
構造
木造
建物面積
127.52 m²
土地面積
417.24 m²
土地権利
所有権
用途地域
住宅地
階
2
駐車場
—
民泊のしやすさ
不明
最寄り駅
空港
温泉
スーパー
コンビニ
病院・クリニック
間取り図

出典:掲載元サイトを見る
読み込み中...
概算合計(諸費用込み): $116,160
4 閲覧
あり
...
