








あり
4DK物件 飯綱町 長野県
読み込み中...
概算合計(諸費用込み): $20,579
79 閲覧
2 お気に入り
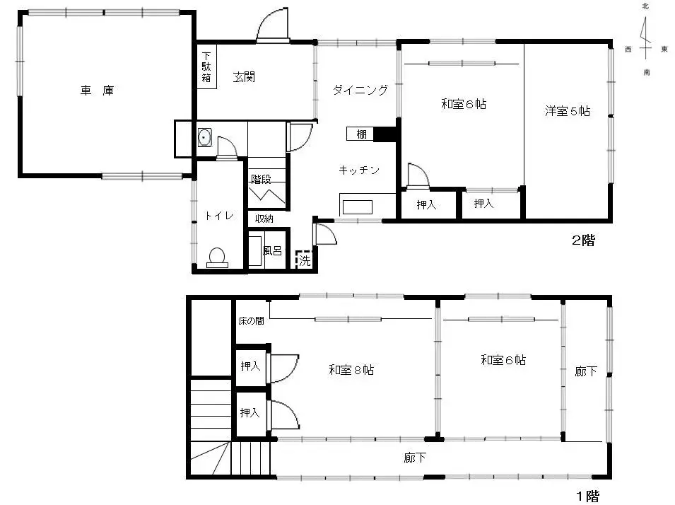
長野県上水内郡飯綱町大字牟礼に位置する、木造2階建ての4DK物件です。建物面積は54.54㎡、敷地面積は197.59㎡とゆとりがあり、田園風景に囲まれた閑静な住環境が魅力です。自然豊かな地域で、落ち着いた生活を求める方に適しています。 広々とした敷地は家庭菜園やガーデニングにも利用可能で、DIYやリノベーションにより自分好みの空間を創造できます。飯綱町での永住や週末利用にも適したこの物件は、地域コミュニティに溶け込みながら、豊かな自然を満喫する生活を実現します。
物件詳細
建築年
Unknown
寝室
4
構造
木造
建物面積
54.54 m²
土地面積
197.59 m²
土地権利
所有権
用途地域
住宅地
階
2
駐車場
—
民泊のしやすさ
不明
最寄り駅
空港
温泉
スーパー
コンビニ
病院・クリニック
間取り図

出典:掲載元サイトを見る
読み込み中...
概算合計(諸費用込み): $20,579
79 閲覧
2 お気に入り
あり
...
