



Disponible
Propriété 3R Ville de Nagaoka Préfecture de Niigata
Chargement...
Total estimé (frais inclus): $96,789
Cette propriété résidentielle 3R, construite à l'origine en 1985, est située dans la ville de Nagaoka, préfecture de Niigata. L'ensemble de la propriété a récemment fait l'objet de rénovations importantes, englobant à la fois son extérieur et son intérieur. Cette rénovation complète assure un espace...
Caractéristiques
ANNÉE DE CONSTRUCTION
1985
Chambres
3
STRUCTURE
鉄骨造
SURFACE HABITABLE
118.5 m²
SURFACE DU TERRAIN
59.8 m²
RÉGIME FONCIER
Propriété pleine
ZONAGE
Résidentiel
ÉTAGE
3
PARKING
—
POTENTIEL MINPAKU
Incertain
Gare la plus proche
Aéroport
Onsen / Source chaude
Supermarché
Épicerie de proximité
Hôpital / Clinique
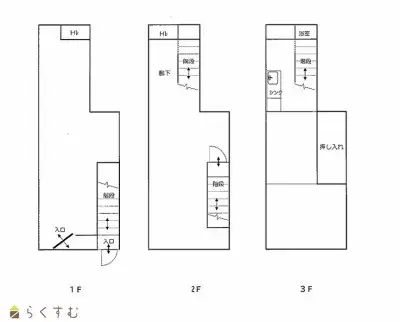
Plan

Source :Voir l'annonce d'origine
Chargement...
Total estimé (frais inclus): $96,789
Disponible
...
