



Disponible
7DK Kawachinagano Ville Préfecture d'Osaka
Chargement...
Total estimé (frais inclus): $58,842
11 vues
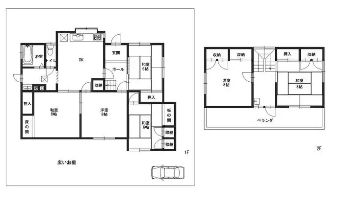
Cette propriété résidentielle de 7DK, construite avec une structure en bois durable en 1973, est stratégiquement située dans un quartier résidentiel serein et bien établi de la ville de Kawachinagano, préfecture d'Osaka. Malgré son année de construction, l'intérieur a été méticuleusement entretenu e...
Caractéristiques
ANNÉE DE CONSTRUCTION
1973
🔴
Pre-1981 seismic standard
Chambres
7
STRUCTURE
木造
SURFACE HABITABLE
92.74 m²
SURFACE DU TERRAIN
261.83 m²
RÉGIME FONCIER
Propriété pleine
ZONAGE
Résidentiel
ÉTAGE
2
PARKING
—
POTENTIEL MINPAKU
Incertain
Gare la plus proche
Aéroport
Onsen / Source chaude
Supermarché
Épicerie de proximité
Hôpital / Clinique
Plan

Source :Voir l'annonce d'origine
Chargement...
Total estimé (frais inclus): $58,842
11 vues
Disponible
...
