




















Disponible
4SLDK Propriété Ville de Koka Préfecture de Shiga
Chargement...
Total estimé (frais inclus): $125,486
4 vues
1 favori
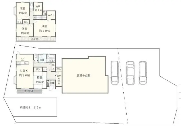
Cette maison en bois de 4SLDK, construite en 1999, est située dans la ville de Koka, préfecture de Shiga. Elle dispose d'une superficie totale spacieuse de 119,31 mètres carrés, sur un terrain étendu de 519 mètres carrés, ce qui équivaut à environ 157 tsubo. La généreuse taille du terrain offre ampl...
Caractéristiques
ANNÉE DE CONSTRUCTION
1999
Chambres
4
STRUCTURE
木造
SURFACE HABITABLE
119.31 m²
SURFACE DU TERRAIN
519 m²
RÉGIME FONCIER
Propriété pleine
ZONAGE
Résidentiel
ÉTAGE
2
PARKING
—
POTENTIEL MINPAKU
Incertain
Gare la plus proche
Aéroport
Onsen / Source chaude
Supermarché
Épicerie de proximité
Hôpital / Clinique
Plan

Source :Voir l'annonce d'origine
Chargement...
Total estimé (frais inclus): $125,486
4 vues
1 favori
Disponible
...
