














Disponible
Propriété 1LDK Kannami-cho Préfecture de Shizuoka
Chargement...
Total estimé (frais inclus): $44,935
65 vues
2 favoris
Cette authentique maison en rondins de bois, construite en 1996, est située à Kannami-cho, préfecture de Shizuoka. Elle est nichée au sein d'une communauté de villas verdoyantes, offrant un environnement tranquille et naturel, idéal pour ceux qui recherchent un répit loin des milieux urbains. La pro...
Caractéristiques
ANNÉE DE CONSTRUCTION
1996
Chambres
1
STRUCTURE
木造
SURFACE HABITABLE
61.82 m²
SURFACE DU TERRAIN
246 m²
RÉGIME FONCIER
Propriété pleine
ZONAGE
Résidentiel
ÉTAGE
2
PARKING
—
POTENTIEL MINPAKU
Incertain
Gare la plus proche
Aéroport
Onsen / Source chaude
Supermarché
Épicerie de proximité
Hôpital / Clinique
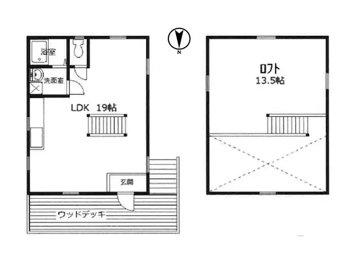
Plan

Source :Voir l'annonce d'origine
Chargement...
Total estimé (frais inclus): $44,935
65 vues
2 favoris
Disponible
...
