





















Disponible
Préfecture de Shizuoka, Ville de Hamamatsu, Propriété 4SLDK
Chargement...
Total estimé (frais inclus): $132,661
3 vues
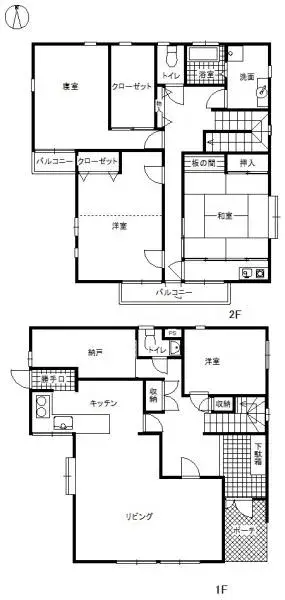
Cette propriété de 4SLDK est située dans l'arrondissement de Chuo, ville de Hamamatsu, préfecture de Shizuoka, offrant une opportunité résidentielle bien aménagée. Avec une superficie généreuse de 176,37 mètres carrés et une superficie de terrain étendue de 342,35 mètres carrés (environ 103,5 tsubo)...
Caractéristiques
ANNÉE DE CONSTRUCTION
1993
Chambres
4
STRUCTURE
木造
SURFACE HABITABLE
176.37 m²
SURFACE DU TERRAIN
342.35 m²
RÉGIME FONCIER
Propriété pleine
ZONAGE
Résidentiel
ÉTAGE
2
PARKING
—
POTENTIEL MINPAKU
Incertain
Gare la plus proche
Aéroport
Onsen / Source chaude
Supermarché
Épicerie de proximité
Hôpital / Clinique
Plan

Source :Voir l'annonce d'origine
Chargement...
Total estimé (frais inclus): $132,661
3 vues
Disponible
...
