






















Disponible
7SLDK Propriété Ville de Gifu Préfecture de Gifu
Chargement...
Total estimé (frais inclus): $148,444
2 vues
1 favori
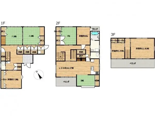
Située à Kida, ville de Gifu, cette maison de 1997 construite en structure métallique, de type 7SLDK, offre un espace de vie spacieux. Elle dispose d'une surface habitable de 253,31 mètres carrés et d'une surface de terrain de 193,17 mètres carrés. Les rénovations prévues comprennent le remplacement...
Caractéristiques
ANNÉE DE CONSTRUCTION
1997
Chambres
7
STRUCTURE
鉄骨造
SURFACE HABITABLE
253.31 m²
SURFACE DU TERRAIN
193.17 m²
RÉGIME FONCIER
Propriété pleine
ZONAGE
Résidentiel
ÉTAGE
3
PARKING
—
POTENTIEL MINPAKU
Incertain
Gare la plus proche
Aéroport
Onsen / Source chaude
Supermarché
Épicerie de proximité
Hôpital / Clinique
Plan

Source :Voir l'annonce d'origine
Chargement...
Total estimé (frais inclus): $148,444
2 vues
1 favori
Disponible
...
