









Disponible
4DK Propriété Matsubushi-machi Kitakatsushika-gun Préfecture de Saitama
Chargement...
Total estimé (frais inclus): $96,789
52 vues
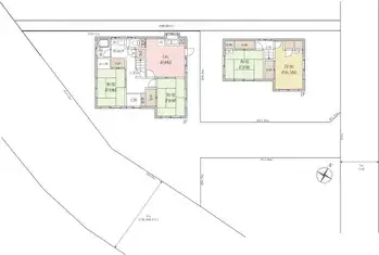
Cette maison individuelle en bois, construite en 1980, est située à Matsubushi-machi, Kitakatsushika-gun, préfecture de Saitama. Elle dispose d'une configuration 4DK avec une superficie totale de 83,63 mètres carrés et une généreuse superficie de terrain de 180,04 mètres carrés. La propriété est ori...
Caractéristiques
ANNÉE DE CONSTRUCTION
1980
🔴
Pre-1981 seismic standard
Chambres
4
STRUCTURE
木造
SURFACE HABITABLE
83.63 m²
SURFACE DU TERRAIN
180.04 m²
RÉGIME FONCIER
Propriété pleine
ZONAGE
Résidentiel
ÉTAGE
2
PARKING
—
POTENTIEL MINPAKU
Incertain
Gare la plus proche
Aéroport
Onsen / Source chaude
Supermarché
Épicerie de proximité
Hôpital / Clinique
Plan

Source :Voir l'annonce d'origine
Chargement...
Total estimé (frais inclus): $96,789
52 vues
Disponible
...
