



Disponible
4LDK Ville de Toda Préfecture de Saitama
Chargement...
Total estimé (frais inclus): $383,897
3 vues
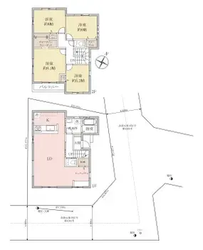
Cette maison en bois contemporaine de 4LDK, nouvellement construite en 2023, est stratégiquement située dans la ville de Toda, préfecture de Saitama, offrant une option résidentielle bien aménagée. La propriété comprend un terrain de 108,33 mètres carrés, offrant un espace extérieur substantiel, com...
Caractéristiques
ANNÉE DE CONSTRUCTION
2023
Chambres
4
STRUCTURE
木造
SURFACE HABITABLE
108.47 m²
SURFACE DU TERRAIN
108.33 m²
RÉGIME FONCIER
Propriété pleine
ZONAGE
Résidentiel
ÉTAGE
2
PARKING
—
POTENTIEL MINPAKU
Incertain
Gare la plus proche
Aéroport
Onsen / Source chaude
Supermarché
Épicerie de proximité
Hôpital / Clinique
Plan

Source :Voir l'annonce d'origine
Chargement...
Total estimé (frais inclus): $383,897
3 vues
Disponible
...
