




Disponible
4LDK Propriété Ville de Koshigaya Préfecture de Saitama
Chargement...
Total estimé (frais inclus): $240,276
1 vue
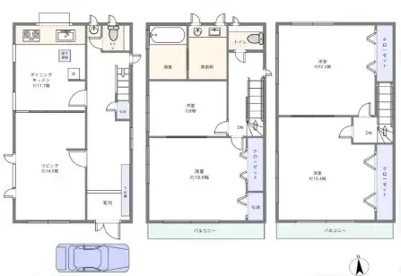
Située dans la ville de Koshigaya, préfecture de Saitama, cette propriété en acier de 4LDK, construite en 1996, offre une surface habitable substantielle de 136,98 mètres carrés sur un terrain de 93,34 mètres carrés. La résidence est stratégiquement positionnée sur un coin sud-ouest et sud-est, ce q...
Caractéristiques
ANNÉE DE CONSTRUCTION
1996
Chambres
4
STRUCTURE
鉄骨造
SURFACE HABITABLE
136.98 m²
SURFACE DU TERRAIN
93.34 m²
RÉGIME FONCIER
Propriété pleine
ZONAGE
Résidentiel
ÉTAGE
3
PARKING
—
POTENTIEL MINPAKU
Peu favorable
Gare la plus proche
Aéroport
Onsen / Source chaude
Supermarché
Épicerie de proximité
Hôpital / Clinique
Plan

Source :Voir l'annonce d'origine
Chargement...
Total estimé (frais inclus): $240,276
1 vue
Disponible
...
