







Disponible
5DK Ville de Shibushi Préfecture de Kagoshima
Chargement...
Total estimé (frais inclus): $27,532
12 vues
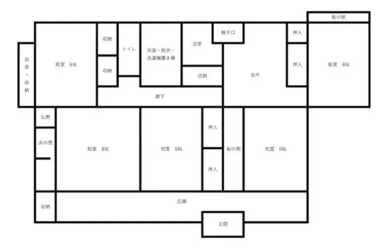
Cette propriété, située à Matsuyama-cho Yasuno, dans la ville de Shibushi, préfecture de Kagoshima, offre une disposition spacieuse de 5DK dans un cadre de maison individuelle. Elle bénéficie d'une superficie de terrain substantielle de 793,96 mètres carrés et d'une généreuse emprise au sol de 136,3...
Caractéristiques
ANNÉE DE CONSTRUCTION
1984
Chambres
5
STRUCTURE
その他 -
SURFACE HABITABLE
136.34 m²
SURFACE DU TERRAIN
793.96 m²
RÉGIME FONCIER
Propriété pleine
ZONAGE
Résidentiel
ÉTAGE
—
PARKING
—
POTENTIEL MINPAKU
Incertain
Gare la plus proche
Aéroport
Onsen / Source chaude
Supermarché
Épicerie de proximité
Hôpital / Clinique
Plan

Source :Voir l'annonce d'origine
Chargement...
Total estimé (frais inclus): $27,532
12 vues
Disponible
...
