







Disponible
Propriété 5DK Ville de Shibushi Préfecture de Kagoshima
Chargement...
Total estimé (frais inclus): $27,532
1 vue
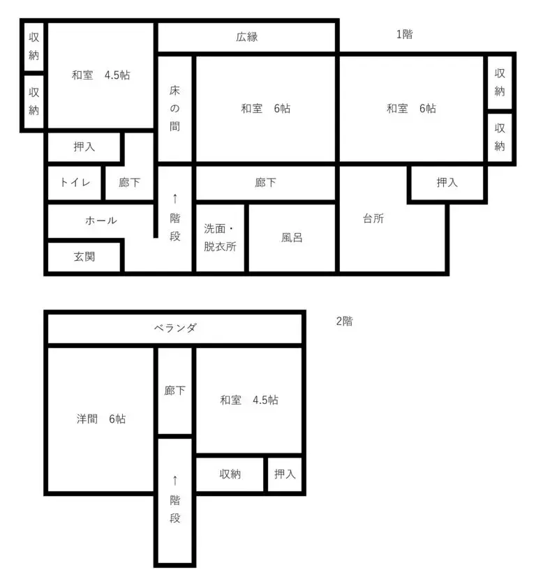
Cette propriété indépendante de 5DK est située dans la ville de Shibushi, préfecture de Kagoshima. L'agencement offre plusieurs pièces indépendantes, offrant une flexibilité pour divers usages et la rendant adaptée à la vie de famille. Elle suit un design résidentiel japonais conventionnel. Bien qu...
Caractéristiques
ANNÉE DE CONSTRUCTION
Unknown
Chambres
5
STRUCTURE
その他 -
SURFACE HABITABLE
-
SURFACE DU TERRAIN
0 m²
RÉGIME FONCIER
Propriété pleine
ZONAGE
Résidentiel
ÉTAGE
2
PARKING
—
POTENTIEL MINPAKU
Incertain
Gare la plus proche
Aéroport
Onsen / Source chaude
Supermarché
Épicerie de proximité
Hôpital / Clinique
Plan

Source :Voir l'annonce d'origine
Chargement...
Total estimé (frais inclus): $27,532
1 vue
Disponible
...
