





Disponible
4K Propriété Ville d'Usuki Préfecture d'Oita
Chargement...
Total estimé (frais inclus): $55,365
1 vue
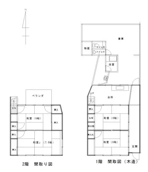
Cette propriété résidentielle, idéalement située dans la ville tranquille d'Usuki, préfecture d'Oita, présente une configuration polyvalente de 4K, conçue pour offrir des espaces de vie flexibles et adaptables aux divers besoins familiaux. La résidence bénéficie d'une superficie totale de bâtiment s...
Caractéristiques
ANNÉE DE CONSTRUCTION
1958
🔴
Pre-1981 seismic standard
Chambres
4
STRUCTURE
木造
SURFACE HABITABLE
109 m²
SURFACE DU TERRAIN
0 m²
RÉGIME FONCIER
Propriété pleine
ZONAGE
Résidentiel
ÉTAGE
—
PARKING
—
POTENTIEL MINPAKU
Incertain
Gare la plus proche
Aéroport
Onsen / Source chaude
Supermarché
Épicerie de proximité
Hôpital / Clinique
Plan

Source :Voir l'annonce d'origine
Chargement...
Total estimé (frais inclus): $55,365
1 vue
Disponible
...
