












Disponible
4K Propriété Ville de Saiki, Préfecture d'Oita
Chargement...
Total estimé (frais inclus): $27,532
6 vues
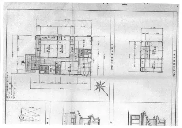
Cette maison individuelle en bois, construite en 1988, est située à Ariakeura, Tsurumi Oaza, dans la ville de Saiki, préfecture d'Oita. La résidence dispose d'un agencement pratique de 4K, offrant des espaces de vie distincts. Elle offre une surface habitable totale substantielle de 148,37 mètres ca...
Caractéristiques
ANNÉE DE CONSTRUCTION
1988
Chambres
4
STRUCTURE
木造
SURFACE HABITABLE
148.37 m²
SURFACE DU TERRAIN
194.08 m²
RÉGIME FONCIER
Propriété pleine
ZONAGE
Résidentiel
ÉTAGE
2
PARKING
—
POTENTIEL MINPAKU
Peu favorable
Gare la plus proche
Aéroport
Onsen / Source chaude
Supermarché
Épicerie de proximité
Hôpital / Clinique
Plan

Source :Voir l'annonce d'origine
Chargement...
Total estimé (frais inclus): $27,532
6 vues
Disponible
...
