
Disponible
[6DK Propriété] Nagasu-machi, Préfecture de Kumamoto
Chargement...
Total estimé (frais inclus): $34,485
5 vues
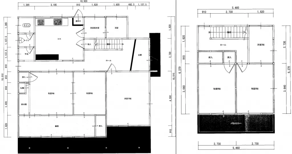
Cette propriété est stratégiquement située à Nagasu-machi, Tamana-gun, préfecture de Kumamoto, présentant une disposition pratique et bien structurée de 6DK. Construite en 1975, cette résidence traditionnelle en bois offre une surface de bâtiment substantielle de 137,46 mètres carrés, garantissant d...
Caractéristiques
ANNÉE DE CONSTRUCTION
1975
🔴
Pre-1981 seismic standard
Chambres
6
STRUCTURE
木造
SURFACE HABITABLE
137.46 m²
SURFACE DU TERRAIN
397.46 m²
RÉGIME FONCIER
Propriété pleine
ZONAGE
Commercial
ÉTAGE
2
PARKING
—
POTENTIEL MINPAKU
Favorable
Gare la plus proche
Aéroport
Onsen / Source chaude
Supermarché
Épicerie de proximité
Hôpital / Clinique
Plan

Source :Voir l'annonce d'origine
Chargement...
Total estimé (frais inclus): $34,485
5 vues
Disponible
...
