
Disponible
4DK Ville de Hirado Préfecture de Nagasaki
Chargement...
Total estimé (frais inclus): $47,717
5 vues
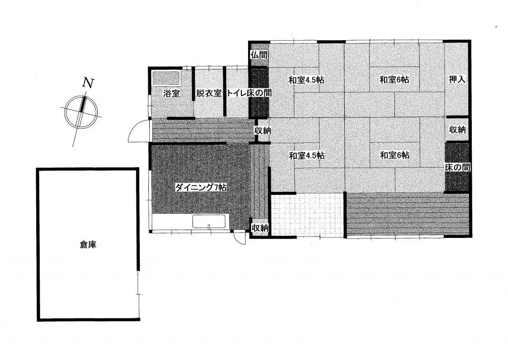
Cette propriété à Hirado City est une maison en bois de 4DK. Elle dispose d'une superficie de bâtiment de 81,30 mètres carrés et d'une superficie de terrain de 374,37 mètres carrés. La résidence comprend une salle de bain. L'année de construction est inconnue, mais le généreux terrain de la proprié...
Caractéristiques
ANNÉE DE CONSTRUCTION
Unknown
Chambres
4
STRUCTURE
木造
SURFACE HABITABLE
81.3 m²
SURFACE DU TERRAIN
374.37 m²
RÉGIME FONCIER
Propriété pleine
ZONAGE
Résidentiel
ÉTAGE
—
PARKING
—
POTENTIEL MINPAKU
Incertain
Gare la plus proche
Aéroport
Onsen / Source chaude
Supermarché
Épicerie de proximité
Hôpital / Clinique
Plan

Source :Voir l'annonce d'origine
Chargement...
Total estimé (frais inclus): $47,717
5 vues
Disponible
...
