






Disponible
5 pièces, propriété Seiyo, préfecture d'Ehime
Chargement...
Total estimé (frais inclus): $34,485
3 vues
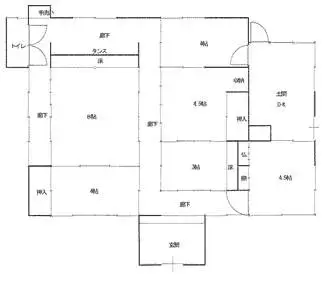
Située à Iwaki, Uwa-cho, dans la ville de Seiyo, préfecture d'Ehime, cette propriété offre une disposition spacieuse de 5DK. Le terrain étendu mesure 810,97 mètres carrés, offrant un potentiel considérable pour divers usages. Construite avec des matériaux en bois traditionnels, la bâtisse reflète un...
Caractéristiques
ANNÉE DE CONSTRUCTION
Unknown
Chambres
5
STRUCTURE
木造
SURFACE HABITABLE
-
SURFACE DU TERRAIN
810.97 m²
RÉGIME FONCIER
Propriété pleine
ZONAGE
Résidentiel
ÉTAGE
1
PARKING
—
POTENTIEL MINPAKU
Incertain
Gare la plus proche
Aéroport
Onsen / Source chaude
Supermarché
Épicerie de proximité
Hôpital / Clinique
Plan

Source :Voir l'annonce d'origine
Chargement...
Total estimé (frais inclus): $34,485
3 vues
Disponible
...
