









Disponible
4DK Propriété Ville de Saijo Préfecture d'Ehime
Chargement...
Total estimé (frais inclus): $58,842
6 vues
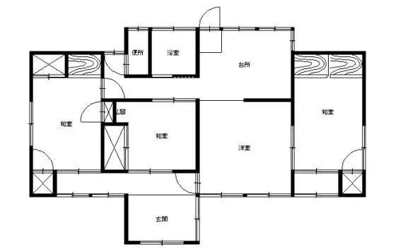
Cette propriété de 4DK est située à Miyoshi, dans la ville de Saijo, préfecture d'Ehime, offrant une disposition fonctionnelle adaptée à la vie de famille ou à un investissement. Située dans une zone résidentielle de première classe de moyenne à haute densité, le quartier offre un environnement rési...
Caractéristiques
ANNÉE DE CONSTRUCTION
Unknown
Chambres
4
STRUCTURE
木造
SURFACE HABITABLE
92.14 m²
SURFACE DU TERRAIN
500.59 m²
RÉGIME FONCIER
Propriété pleine
ZONAGE
Résidentiel
ÉTAGE
—
PARKING
—
POTENTIEL MINPAKU
Incertain
Gare la plus proche
Aéroport
Onsen / Source chaude
Supermarché
Épicerie de proximité
Hôpital / Clinique
Plan

Source :Voir l'annonce d'origine
Chargement...
Total estimé (frais inclus): $58,842
6 vues
Disponible
...
