










Disponible
10DK Propriété Ville de Saijo Préfecture d'Ehime
Chargement...
Total estimé (frais inclus): $34,485
6 vues
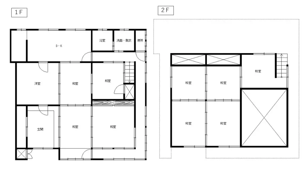
Cette propriété à Kawaratsu, ville de Saijo, préfecture d'Ehime, offre une disposition spacieuse de 10DK dans une structure en bois. Le bâtiment s'étend sur 205,59 mètres carrés sur un terrain généreux de 188,22 mètres carrés. Bien que l'année exacte de construction soit inconnue, elle offre un espa...
Caractéristiques
ANNÉE DE CONSTRUCTION
Unknown
Chambres
10
STRUCTURE
木造
SURFACE HABITABLE
205.59 m²
SURFACE DU TERRAIN
188.22 m²
RÉGIME FONCIER
Propriété pleine
ZONAGE
Résidentiel
ÉTAGE
2
PARKING
—
POTENTIEL MINPAKU
Incertain
Gare la plus proche
Aéroport
Onsen / Source chaude
Supermarché
Épicerie de proximité
Hôpital / Clinique
Plan

Source :Voir l'annonce d'origine
Chargement...
Total estimé (frais inclus): $34,485
6 vues
Disponible
...
