







Disponible
4DK Propriété Ville de Saijo Préfecture d'Ehime
Chargement...
Total estimé (frais inclus): $27,532
1 vue
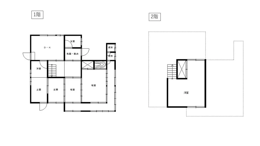
Cette propriété en bois de 4DK est située dans la ville de Saijo, préfecture d'Ehime, offrant un environnement de vie pratique et confortable. Le bâtiment s'étend sur 76,0 mètres carrés, positionné sur un terrain spacieux de 432,77 mètres carrés. Cette superficie substantielle offre un potentiel imp...
Caractéristiques
ANNÉE DE CONSTRUCTION
Unknown
Chambres
4
STRUCTURE
木造
SURFACE HABITABLE
76 m²
SURFACE DU TERRAIN
432.77 m²
RÉGIME FONCIER
Propriété pleine
ZONAGE
Résidentiel
ÉTAGE
—
PARKING
—
POTENTIEL MINPAKU
Incertain
Gare la plus proche
Aéroport
Onsen / Source chaude
Supermarché
Épicerie de proximité
Hôpital / Clinique
Plan

Source :Voir l'annonce d'origine
Chargement...
Total estimé (frais inclus): $27,532
1 vue
Disponible
...
