Disponible
12DK Propriété Ville d'Imabari Préfecture d'Ehime
Chargement...
Total estimé (frais inclus): $20,579
3 vues
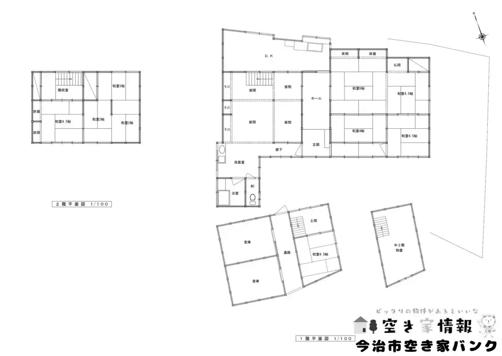
Cette propriété est située à Sekizen Okamura, dans la ville d'Imabari, préfecture d'Ehime, offrant un cadre résidentiel serein. La résidence dispose d'une disposition substantielle de 12DK, offrant une gamme variée de pièces pouvant accueillir diverses configurations de vie, ce qui la rend adaptée a...
Caractéristiques
ANNÉE DE CONSTRUCTION
Unknown
Chambres
12
STRUCTURE
木造
SURFACE HABITABLE
76.03 m²
SURFACE DU TERRAIN
344.98 m²
RÉGIME FONCIER
Propriété pleine
ZONAGE
Résidentiel
ÉTAGE
2
PARKING
—
POTENTIEL MINPAKU
Peu favorable
Gare la plus proche
Aéroport
Onsen / Source chaude
Supermarché
Épicerie de proximité
Hôpital / Clinique
Plan

Source :Voir l'annonce d'origine
Chargement...
Total estimé (frais inclus): $20,579
3 vues
Disponible
...
