



























Disponible
4LDK Propriété Ville d'Uwajima Préfecture d'Ehime
Chargement...
Total estimé (frais inclus): $13,626
25 vues
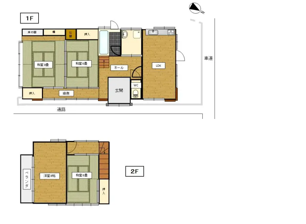
Cette propriété de 4LDK est située sur Hibrishima, une île sereine dans la ville d'Uwajima, préfecture d'Ehime, offrant un espace de vie substantiel de 113,32 mètres carrés sur un généreux terrain de 278,35 mètres carrés. Construite en 1983 avec une structure en bois durable, cette résidence présent...
Caractéristiques
ANNÉE DE CONSTRUCTION
1983
Chambres
4
STRUCTURE
木造
SURFACE HABITABLE
113.32 m²
SURFACE DU TERRAIN
278.35 m²
RÉGIME FONCIER
Propriété pleine
ZONAGE
Résidentiel
ÉTAGE
2
PARKING
—
POTENTIEL MINPAKU
Peu favorable
Gare la plus proche
Aéroport
Onsen / Source chaude
Supermarché
Épicerie de proximité
Hôpital / Clinique
Plan

Source :Voir l'annonce d'origine
Chargement...
Total estimé (frais inclus): $13,626
25 vues
Disponible
...
