










Disponible
5DK Propriété Shikokuchuo Ville Préfecture d'Ehime
Chargement...
Total estimé (frais inclus): $15,016
8 vues
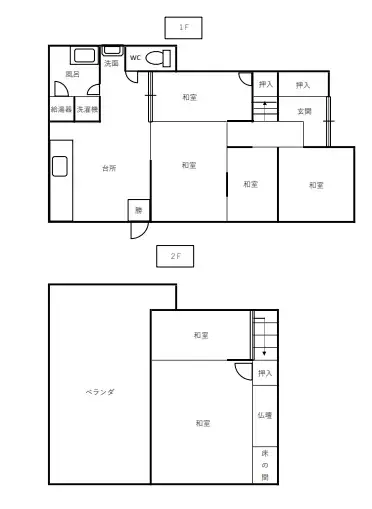
Cette maison individuelle de 5DK, située dans la ville de Shikokuchuo, préfecture d'Ehime, offre un espace de vie fonctionnel avec une emprise au sol de 90,71 mètres carrés sur un généreux terrain de 111,7 mètres carrés. Construite en bois durable, la propriété présente une disposition pratique comp...
Caractéristiques
ANNÉE DE CONSTRUCTION
Unknown
Chambres
5
STRUCTURE
木造
SURFACE HABITABLE
90.71 m²
SURFACE DU TERRAIN
111.7 m²
RÉGIME FONCIER
Propriété pleine
ZONAGE
Résidentiel
ÉTAGE
—
PARKING
—
POTENTIEL MINPAKU
Incertain
Gare la plus proche
Aéroport
Onsen / Source chaude
Supermarché
Épicerie de proximité
Hôpital / Clinique
Plan

Source :Voir l'annonce d'origine
Chargement...
Total estimé (frais inclus): $15,016
8 vues
Disponible
...
