








Disponible
Propriété 5DK à Saijo City, Préfecture d'Ehime
Chargement...
Total estimé (frais inclus): $58,842
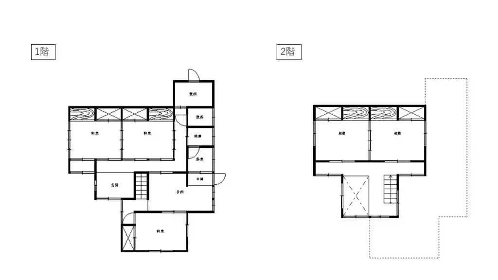
Cette maison en bois de 5DK est située à Kitagawa, dans la ville de Saijo, préfecture d'Ehime, offrant un espace de vie substantiel idéal pour les familles. La propriété bénéficie d'une superficie généreuse de 249,34 mètres carrés, complétée par une surface bâtie de 138,51 mètres carrés. Sa construc...
Caractéristiques
ANNÉE DE CONSTRUCTION
Unknown
Chambres
5
STRUCTURE
木造
SURFACE HABITABLE
138.51 m²
SURFACE DU TERRAIN
249.34 m²
RÉGIME FONCIER
Propriété pleine
ZONAGE
Résidentiel
ÉTAGE
—
PARKING
—
POTENTIEL MINPAKU
Incertain
Gare la plus proche
Aéroport
Onsen / Source chaude
Supermarché
Épicerie de proximité
Hôpital / Clinique
Plan

Source :Voir l'annonce d'origine
Chargement...
Total estimé (frais inclus): $58,842
Disponible
...
