









Disponible
6K Propriété Ville d'Imabari Préfecture d'Ehime
Chargement...
Total estimé (frais inclus): $34,485
4 vues
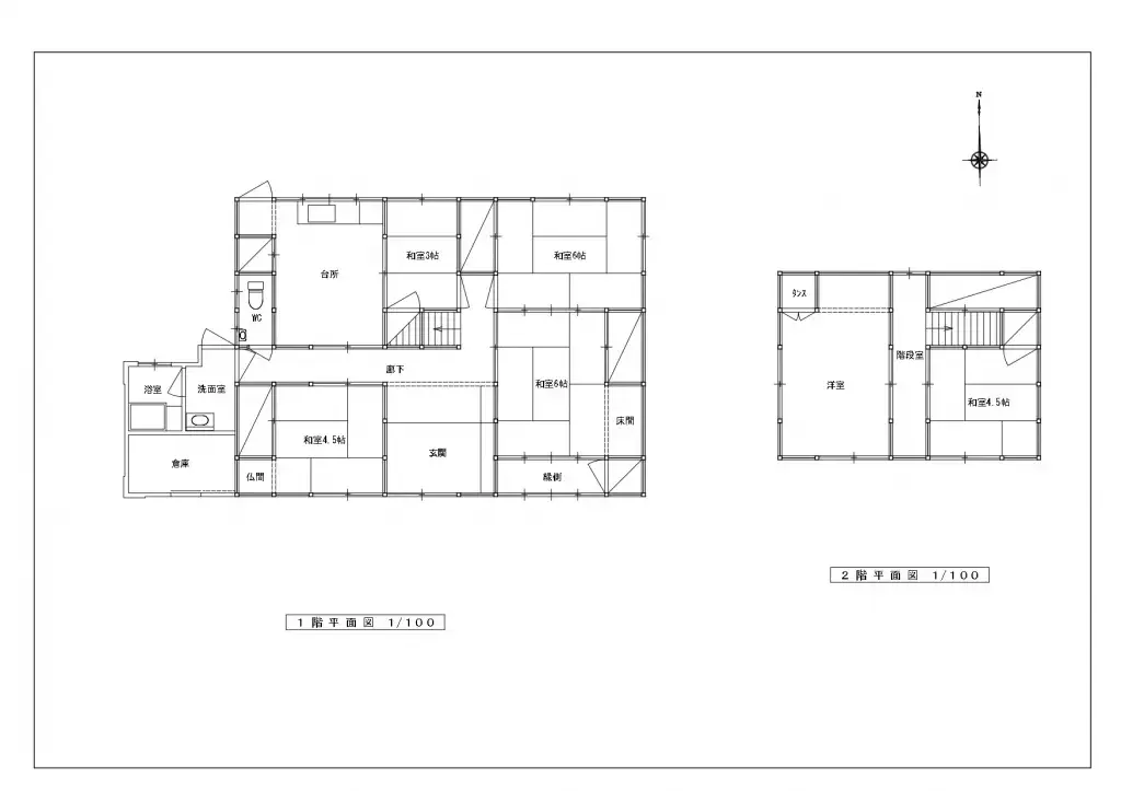
Cette résidence en bois de 6K est située à Obe, Namikata-cho, Imabari City, Préfecture d'Ehime, présentant une habitation établie. Construite en 1967, la propriété dispose d'une surface de bâtiment de 85,71 mètres carrés, sur un terrain substantiel de 185,87 mètres carrés. La structure est construit...
Caractéristiques
ANNÉE DE CONSTRUCTION
1967
🔴
Pre-1981 seismic standard
Chambres
6
STRUCTURE
木造
SURFACE HABITABLE
85.71 m²
SURFACE DU TERRAIN
185.87 m²
RÉGIME FONCIER
Propriété pleine
ZONAGE
Résidentiel
ÉTAGE
2
PARKING
—
POTENTIEL MINPAKU
Incertain
Gare la plus proche
Aéroport
Onsen / Source chaude
Supermarché
Épicerie de proximité
Hôpital / Clinique
Plan

Source :Voir l'annonce d'origine
Chargement...
Total estimé (frais inclus): $34,485
4 vues
Disponible
...
