



Disponible
8DK Propriété Mannō-cho, Nakatado-gun Préfecture de Kagawa
Chargement...
Total estimé (frais inclus): $17,102
54 vues
3 favoris
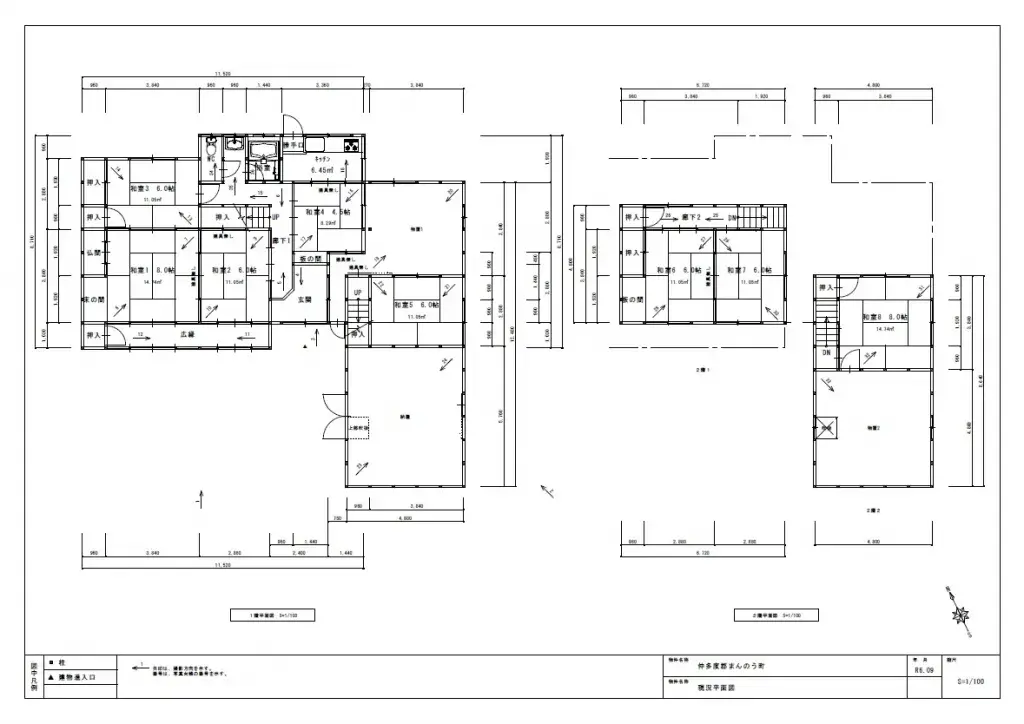
Cette substantielle maison en bois de 8DK, construite en 1971, est située à Miyata, Mannō-cho, Nakatado-gun, préfecture de Kagawa. S'étendant sur une superficie totale généreuse de 221,42 mètres carrés, cette propriété offre un vaste espace de vie à travers ses nombreuses pièces, la rendant très ada...
Caractéristiques
ANNÉE DE CONSTRUCTION
1971
🔴
Pre-1981 seismic standard
Chambres
8
STRUCTURE
木造
SURFACE HABITABLE
221.42 m²
SURFACE DU TERRAIN
0 m²
RÉGIME FONCIER
Propriété pleine
ZONAGE
Résidentiel
ÉTAGE
2
PARKING
—
POTENTIEL MINPAKU
Incertain
Gare la plus proche
Aéroport
Onsen / Source chaude
Supermarché
Épicerie de proximité
Hôpital / Clinique
Plan

Chargement...
Total estimé (frais inclus): $17,102
54 vues
3 favoris
Disponible
...
