





Disponible
8DK Naka Town Préfecture de Tokushima
Chargement...
Total estimé (frais inclus): $27,532
3 vues
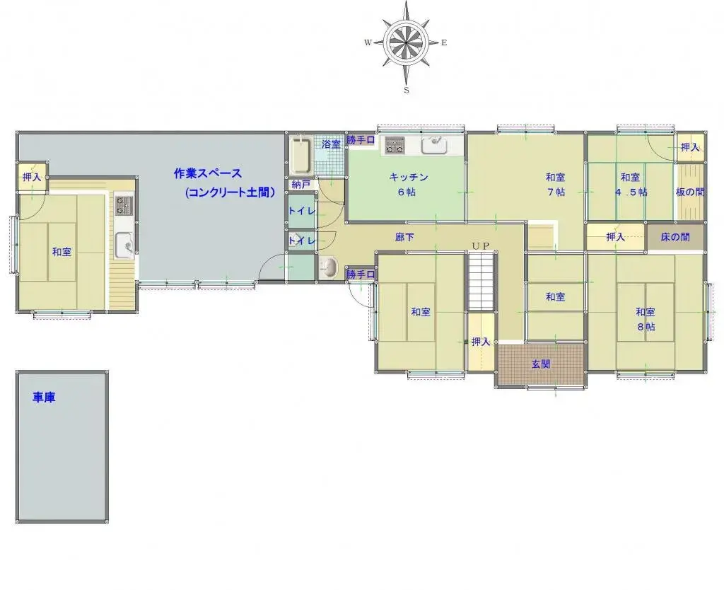
Cette propriété est une maison individuelle traditionnelle en bois, stratégiquement située à Yachi, ville de Naka, district de Naka, dans la préfecture de Tokushima. Construite en 1981, elle offre une disposition généreuse de 8DK, avec une superficie totale de 143,11 mètres carrés. Ce plan d'étage é...
Caractéristiques
ANNÉE DE CONSTRUCTION
1981
⚠️
Seismic standard unclear
Chambres
8
STRUCTURE
木造
SURFACE HABITABLE
143.11 m²
SURFACE DU TERRAIN
323 m²
RÉGIME FONCIER
Propriété pleine
ZONAGE
Résidentiel
ÉTAGE
2
PARKING
—
POTENTIEL MINPAKU
Incertain
Gare la plus proche
Aéroport
Onsen / Source chaude
Supermarché
Épicerie de proximité
Hôpital / Clinique
Plan

Source :Voir l'annonce d'origine
Chargement...
Total estimé (frais inclus): $27,532
3 vues
Disponible
...
