
Disponible
Propriété 5DK Mine Ville Préfecture de Yamaguchi
Chargement...
Total estimé (frais inclus): $17,102
5 vues
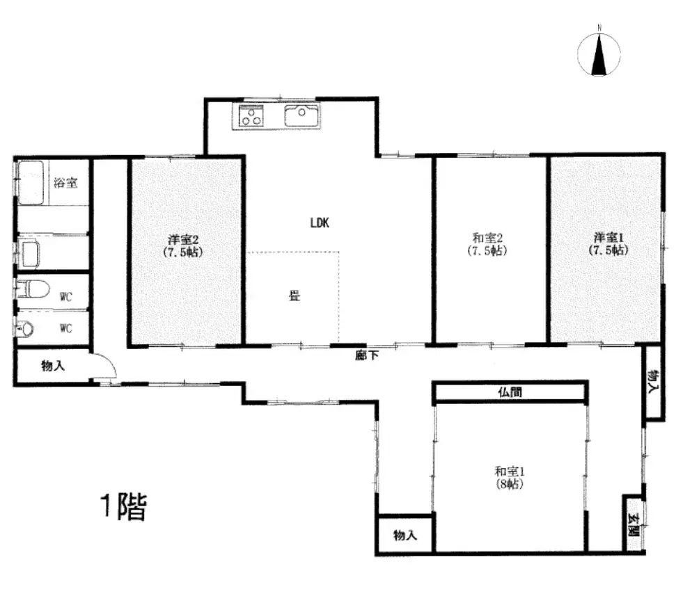
Cette maison individuelle de 5DK, construite en 1971, présente une structure en bois robuste couvrant une superficie totale généreuse de 100,68 mètres carrés. L'agencement réfléchi de 5DK offre des espaces amples et bien définis pour une vie de famille confortable, comprenant des zones distinctes po...
Caractéristiques
ANNÉE DE CONSTRUCTION
1971
🔴
Pre-1981 seismic standard
Chambres
5
STRUCTURE
木造
SURFACE HABITABLE
100.68 m²
SURFACE DU TERRAIN
0 m²
RÉGIME FONCIER
Propriété pleine
ZONAGE
Résidentiel
ÉTAGE
—
PARKING
—
POTENTIEL MINPAKU
Incertain
Gare la plus proche
Aéroport
Onsen / Source chaude
Supermarché
Épicerie de proximité
Hôpital / Clinique
Plan

Source :Voir l'annonce d'origine
Chargement...
Total estimé (frais inclus): $17,102
5 vues
Disponible
...
