
Disponible
5LDK Propriété Mine Ville Préfecture de Yamaguchi
Chargement...
Total estimé (frais inclus): $83,875
5 vues
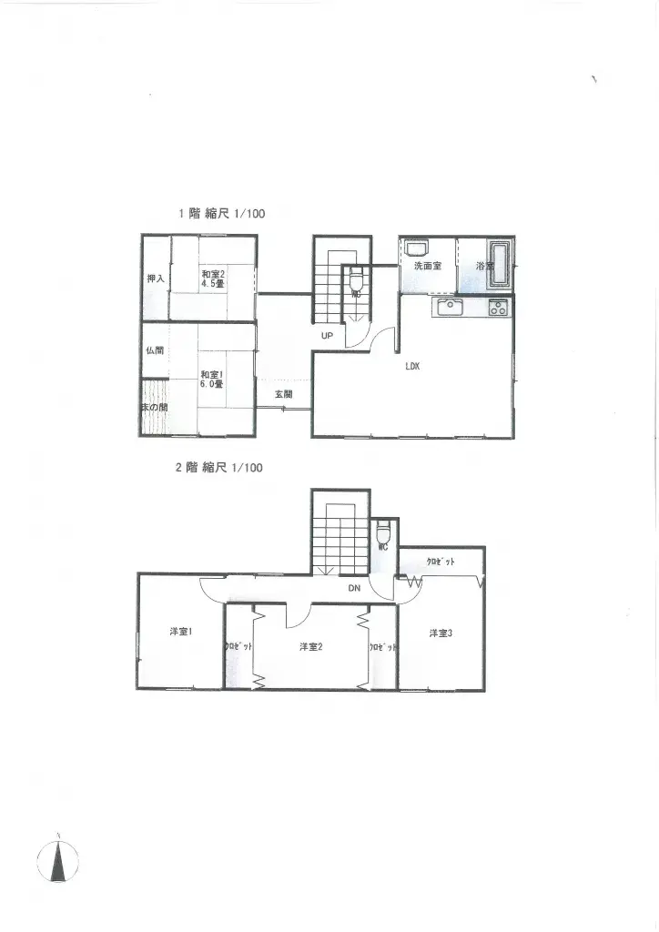
Cette propriété, située à Isa, Isamachi, Mine City, préfecture de Yamaguchi, présente une disposition pratique de 5LDK, offrant un espace de vie substantiel adapté à une famille. La superficie totale du bâtiment s'étend sur 93,75 mètres carrés, offrant un intérieur bien proportionné. Elle est constr...
Caractéristiques
ANNÉE DE CONSTRUCTION
Unknown
Chambres
5
STRUCTURE
木造
SURFACE HABITABLE
93.75 m²
SURFACE DU TERRAIN
0 m²
RÉGIME FONCIER
Propriété pleine
ZONAGE
Résidentiel
ÉTAGE
—
PARKING
—
POTENTIEL MINPAKU
Incertain
Gare la plus proche
Aéroport
Onsen / Source chaude
Supermarché
Épicerie de proximité
Hôpital / Clinique
Plan

Source :Voir l'annonce d'origine
Chargement...
Total estimé (frais inclus): $83,875
5 vues
Disponible
...
