



Disponible
7K Propriété Ville de Higashihiroshima Préfecture de Hiroshima
Chargement...
Total estimé (frais inclus): $34,485
1 vue
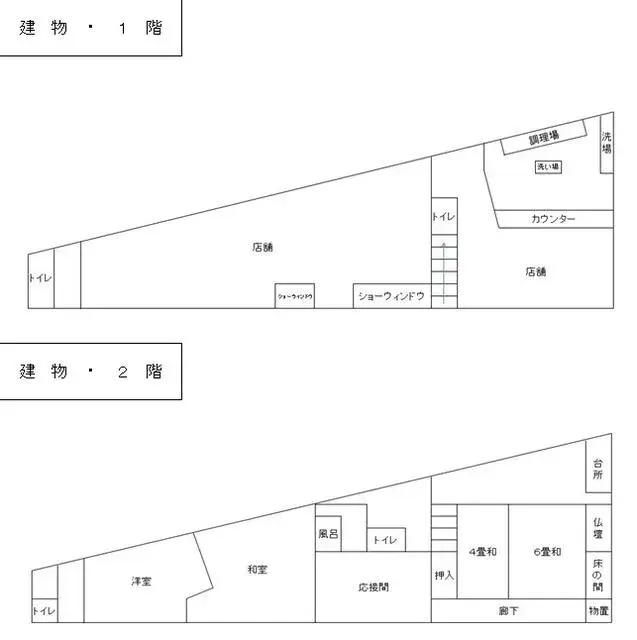
Cette substantielle propriété à ossature acier de 7K, construite en 1974, est stratégiquement située à Akitsu-cho Mitsu, dans la ville de Higashihiroshima. Elle offre une généreuse surface bâtie de 218,02 mètres carrés, implantée sur un terrain bien proportionné de 184,55 mètres carrés, garantissant...
Caractéristiques
ANNÉE DE CONSTRUCTION
1974
🔴
Pre-1981 seismic standard
Chambres
7
STRUCTURE
鉄骨
SURFACE HABITABLE
218.02 m²
SURFACE DU TERRAIN
184.55 m²
RÉGIME FONCIER
Propriété pleine
ZONAGE
Résidentiel
ÉTAGE
2
PARKING
—
POTENTIEL MINPAKU
Incertain
Gare la plus proche
Aéroport
Onsen / Source chaude
Supermarché
Épicerie de proximité
Hôpital / Clinique
Plan

Source :Voir l'annonce d'origine
Chargement...
Total estimé (frais inclus): $34,485
1 vue
Disponible
...
