

















Disponible
6DK Ville de Takehara Préfecture de Hiroshima
Chargement...
Total estimé (frais inclus): $60,233
4 vues
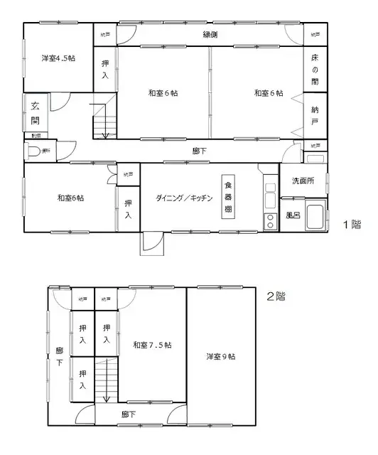
Cette propriété de 6DK est située à Shinjo-cho, ville de Takehara, préfecture de Hiroshima, offrant un espace de vie substantiel et polyvalent. La résidence bénéficie d'une superficie totale de 150,75 mètres carrés, implantée sur un terrain spacieux de 360,33 mètres carrés. Cette taille de terrain g...
Caractéristiques
ANNÉE DE CONSTRUCTION
1979
🔴
Pre-1981 seismic standard
Chambres
6
STRUCTURE
木造
SURFACE HABITABLE
150.75 m²
SURFACE DU TERRAIN
360.33 m²
RÉGIME FONCIER
Propriété pleine
ZONAGE
Industriel
ÉTAGE
2
PARKING
—
POTENTIEL MINPAKU
Peu favorable
Gare la plus proche
Aéroport
Onsen / Source chaude
Supermarché
Épicerie de proximité
Hôpital / Clinique
Plan

Source :Voir l'annonce d'origine
Chargement...
Total estimé (frais inclus): $60,233
4 vues
Disponible
...
