















Disponible
6SK Property Aki-gun Sakamachi Préfecture de Hiroshima
Chargement...
Total estimé (frais inclus): $10,137
70 vues
2 favoris
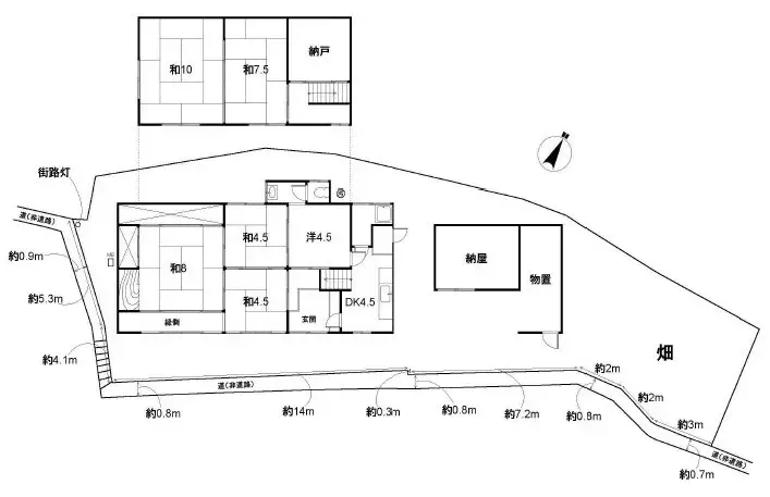
Située à Sakasai, Aki-gun Sakamachi, préfecture d'Hiroshima, cette propriété en bois de 6SK offre un espace de vie fonctionnel et adaptable. Le bâtiment s'étend sur 39,66 mètres carrés, offrant un logement intérieur compact mais efficace. Il est situé sur un terrain généreux de 237,51 mètres carrés,...
Caractéristiques
ANNÉE DE CONSTRUCTION
Unknown
Chambres
6
STRUCTURE
木造
SURFACE HABITABLE
39.66 m²
SURFACE DU TERRAIN
237.51 m²
RÉGIME FONCIER
Propriété pleine
ZONAGE
Résidentiel
ÉTAGE
—
PARKING
—
POTENTIEL MINPAKU
Incertain
Gare la plus proche
Aéroport
Onsen / Source chaude
Supermarché
Épicerie de proximité
Hôpital / Clinique
Plan

Source :Voir l'annonce d'origine
Chargement...
Total estimé (frais inclus): $10,137
70 vues
2 favoris
Disponible
...
