













Disponible
7LDK Propriété Ville de Takehara Préfecture de Hiroshima
Chargement...
Total estimé (frais inclus): $31,009
4 vues
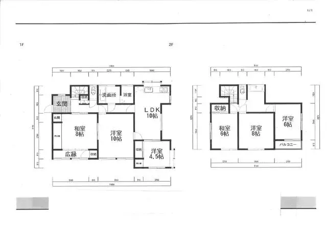
Cette maison individuelle de 7LDK est située à Fukuda-cho, ville de Takehara, préfecture d'Hiroshima. Elle offre une disposition spacieuse, idéale pour les grandes familles recherchant un espace de vie généreux. La propriété bénéficie d'une surface de bâtiment de 144,97 mètres carrés et d'un terrain...
Caractéristiques
ANNÉE DE CONSTRUCTION
1981
⚠️
Seismic standard unclear
Chambres
7
STRUCTURE
木造
SURFACE HABITABLE
144.97 m²
SURFACE DU TERRAIN
389 m²
RÉGIME FONCIER
Propriété pleine
ZONAGE
Résidentiel
ÉTAGE
2
PARKING
—
POTENTIEL MINPAKU
Incertain
Gare la plus proche
Aéroport
Onsen / Source chaude
Supermarché
Épicerie de proximité
Hôpital / Clinique
Plan

Source :Voir l'annonce d'origine
Chargement...
Total estimé (frais inclus): $31,009
4 vues
Disponible
...
