




Disponible
5DK Propriété Misaki-cho Okayama-ken
Chargement...
Total estimé (frais inclus): $31,009
5 vues
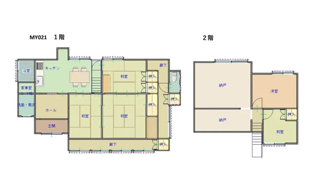
Cette propriété substantielle, située à Miyama, ville de Misaki, district de Kume, préfecture d'Okayama, offre une maison en bois bien construite, érigée en 1985. Elle présente un plan d'étage 5DK pratique et spacieux, offrant de nombreux espaces individuels et communs, idéalement adaptés à une fami...
Caractéristiques
ANNÉE DE CONSTRUCTION
1985
Chambres
5
STRUCTURE
木造
SURFACE HABITABLE
134.66 m²
SURFACE DU TERRAIN
342.44 m²
RÉGIME FONCIER
Propriété pleine
ZONAGE
Résidentiel
ÉTAGE
—
PARKING
—
POTENTIEL MINPAKU
Incertain
Gare la plus proche
Aéroport
Onsen / Source chaude
Supermarché
Épicerie de proximité
Hôpital / Clinique
Plan

Source :Voir l'annonce d'origine
Chargement...
Total estimé (frais inclus): $31,009
5 vues
Disponible
...
