








Disponible
5LDK Propriété Okuchizumo-cho Préfecture de Shimane
Chargement...
Total estimé (frais inclus): $44,935
7 vues
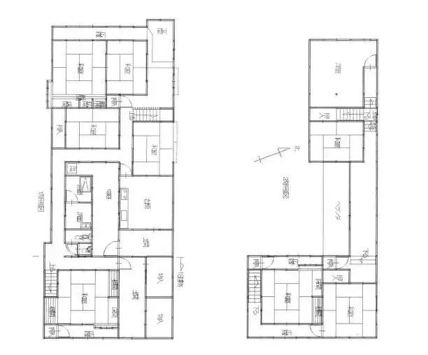
Cette propriété est située à Shimokoyota, Okuchizumo-cho, Nita-gun, préfecture de Shimane, offrant une disposition spacieuse de 5LDK. Le bâtiment s'étend sur une superficie impressionnante de 437,72 mètres carrés, offrant un espace de vie substantiel adapté à divers besoins familiaux, de la vie de f...
Caractéristiques
ANNÉE DE CONSTRUCTION
Unknown
Chambres
5
STRUCTURE
木造
SURFACE HABITABLE
437.72 m²
SURFACE DU TERRAIN
0 m²
RÉGIME FONCIER
Propriété pleine
ZONAGE
Résidentiel
ÉTAGE
—
PARKING
—
POTENTIEL MINPAKU
Incertain
Gare la plus proche
Aéroport
Onsen / Source chaude
Supermarché
Épicerie de proximité
Hôpital / Clinique
Plan

Source :Voir l'annonce d'origine
Chargement...
Total estimé (frais inclus): $44,935
7 vues
Disponible
...
