




Disponible
[Propriété 1SLDK] Ville d'Uda, Préfecture de Nara
Chargement...
Total estimé (frais inclus): $24,056
15 vues
1 favori
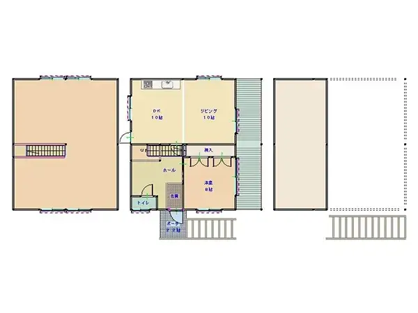
Cette propriété de 1SLDK est située à Muroukamikasama, ville d'Uda, préfecture de Nara. Elle dispose d'une superficie de terrain spacieuse de 180,00 m², avec une construction en acier, indiquant une robustesse durable. La résidence comprend une salle de bain. La propriété est située dans un environ...
Caractéristiques
ANNÉE DE CONSTRUCTION
Unknown
Chambres
1
STRUCTURE
鉄骨
SURFACE HABITABLE
-
SURFACE DU TERRAIN
180 m²
RÉGIME FONCIER
Propriété pleine
ZONAGE
Résidentiel
ÉTAGE
3
PARKING
—
POTENTIEL MINPAKU
Incertain
Gare la plus proche
Aéroport
Onsen / Source chaude
Supermarché
Épicerie de proximité
Hôpital / Clinique
Plan

Source :Voir l'annonce d'origine
Chargement...
Total estimé (frais inclus): $24,056
15 vues
1 favori
Disponible
...
