















Disponible
4LDK Propriété Heguri-cho Préfecture de Nara
Chargement...
Total estimé (frais inclus): $61,623
6 vues
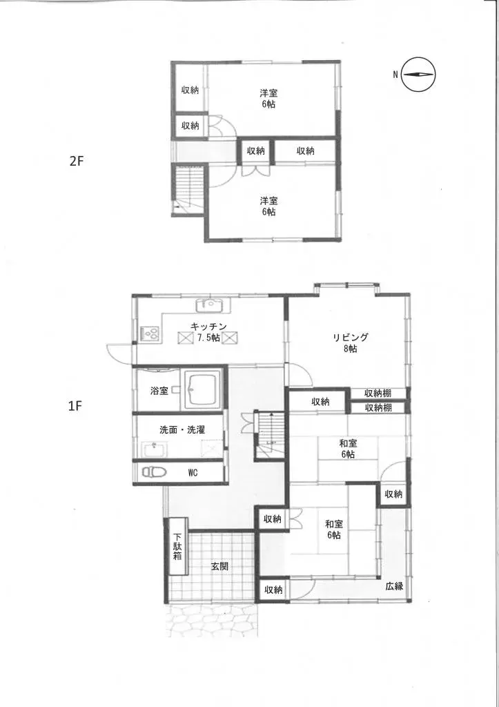
Cette maison individuelle en bois de 4LDK, construite en 1979, est idéalement située à Wakabadai, Heguri-cho, Ikoma-gun, préfecture de Nara. Elle bénéficie d'une surface habitable totale substantielle de 107,64 mètres carrés, intelligemment conçue sur son agencement multi-pièces pour maximiser l'esp...
Caractéristiques
ANNÉE DE CONSTRUCTION
1979
🔴
Pre-1981 seismic standard
Chambres
4
STRUCTURE
木造
SURFACE HABITABLE
107.64 m²
SURFACE DU TERRAIN
210.25 m²
RÉGIME FONCIER
Propriété pleine
ZONAGE
Résidentiel
ÉTAGE
2
PARKING
—
POTENTIEL MINPAKU
Incertain
Gare la plus proche
Aéroport
Onsen / Source chaude
Supermarché
Épicerie de proximité
Hôpital / Clinique
Plan

Source :Voir l'annonce d'origine
Chargement...
Total estimé (frais inclus): $61,623
6 vues
Disponible
...
