
Disponible
4K Propriété Ville de Kasai Préfecture de Hyogo
Chargement...
Total estimé (frais inclus): $41,091
4 vues
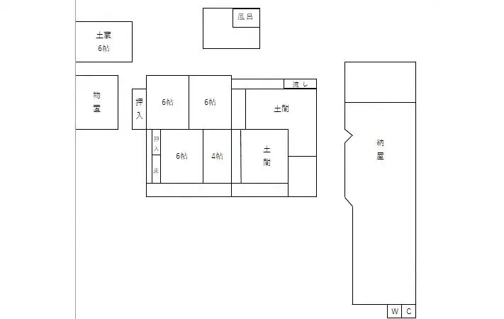
Cette propriété située à Shimo-Akeda-cho, Kasai City, Préfecture de Hyogo, est une maison en bois de type 4K. Elle bénéficie d'un terrain spacieux de 485,95 mètres carrés et d'une surface habitable de 103,83 mètres carrés, offrant un espace de vie généreux. La résidence comprend une salle de bain....
Caractéristiques
ANNÉE DE CONSTRUCTION
Unknown
Chambres
4
STRUCTURE
木造
SURFACE HABITABLE
103.83 m²
SURFACE DU TERRAIN
485.95 m²
RÉGIME FONCIER
Propriété pleine
ZONAGE
Résidentiel
ÉTAGE
1
PARKING
—
POTENTIEL MINPAKU
Incertain
Gare la plus proche
Aéroport
Onsen / Source chaude
Supermarché
Épicerie de proximité
Hôpital / Clinique
Plan

Source :Voir l'annonce d'origine
Chargement...
Total estimé (frais inclus): $41,091
4 vues
Disponible
...
