
















Disponible
4DK Propriété Shin'onsen-cho Préfecture de Hyogo
Chargement...
Total estimé (frais inclus): $10,137
42 vues
1 favori
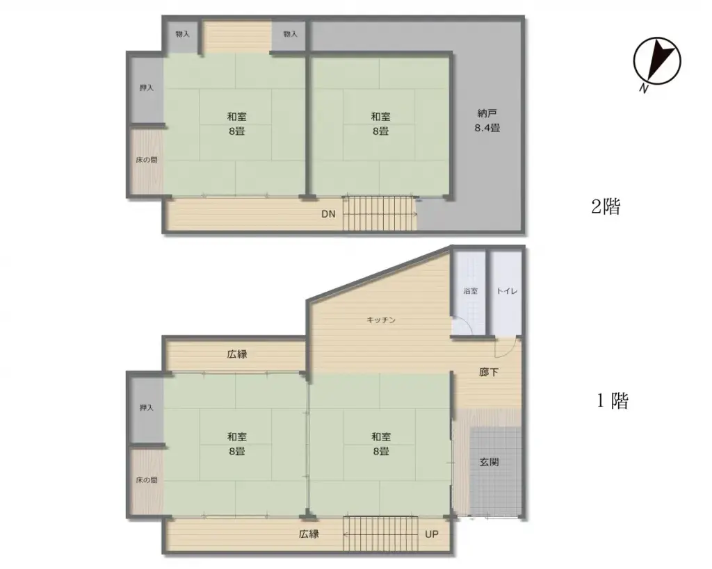
Cette maison individuelle de 4DK est située à Shin'onsen-cho, Mikata-gun, préfecture de Hyogo, offrant un environnement de vie structuré. La résidence englobe une superficie de bâtiment de 90,00 m², située sur un terrain s'étendant sur 132,20 m². Les principales caractéristiques internes comprennent...
Caractéristiques
ANNÉE DE CONSTRUCTION
Unknown
Chambres
4
STRUCTURE
木造
SURFACE HABITABLE
90 m²
SURFACE DU TERRAIN
132.2 m²
RÉGIME FONCIER
Propriété pleine
ZONAGE
Résidentiel
ÉTAGE
2
PARKING
—
POTENTIEL MINPAKU
Incertain
Gare la plus proche
Aéroport
Onsen / Source chaude
Supermarché
Épicerie de proximité
Hôpital / Clinique
Plan

Source :Voir l'annonce d'origine
Chargement...
Total estimé (frais inclus): $10,137
42 vues
1 favori
Disponible
...
