










Disponible
7DK Shin-onsen-cho Hyogo
Chargement...
Total estimé (frais inclus): $13,626
28 vues
1 favori
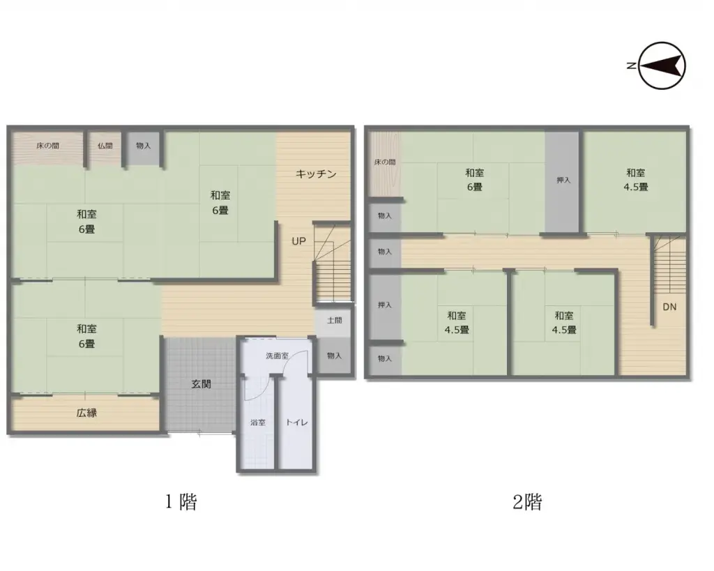
Cette propriété est une maison traditionnelle en bois située à Shin-onsen-cho, préfecture de Hyogo, offrant une configuration substantielle de 7DK. Cette configuration comprend sept pièces distinctes plus un espace salle à manger et cuisine, offrant une grande polyvalence pour divers aménagements de...
Caractéristiques
ANNÉE DE CONSTRUCTION
1982
Chambres
7
STRUCTURE
木造
SURFACE HABITABLE
129.82 m²
SURFACE DU TERRAIN
92.56 m²
RÉGIME FONCIER
Propriété pleine
ZONAGE
Résidentiel
ÉTAGE
2
PARKING
—
POTENTIEL MINPAKU
Incertain
Gare la plus proche
Aéroport
Onsen / Source chaude
Supermarché
Épicerie de proximité
Hôpital / Clinique
Plan

Source :Voir l'annonce d'origine
Chargement...
Total estimé (frais inclus): $13,626
28 vues
1 favori
Disponible
...
