



















Disponible
4LDK Propriété Ville de Nantan Préfecture de Kyoto
Chargement...
Total estimé (frais inclus): $76,701
17 vues
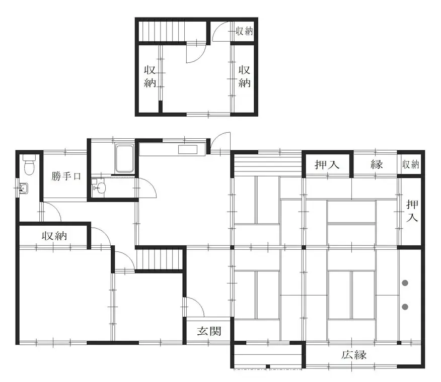
Cette propriété présente une spacieuse maison en bois de 4LDK située à Yagi-cho, Nantan City, préfecture de Kyoto. Bénéficiant d'une superficie généreuse de 158,16 mètres carrés et d'un terrain étendu de 424,97 mètres carrés, cette résidence offre un espace de vie suffisant, idéal pour un style de v...
Caractéristiques
ANNÉE DE CONSTRUCTION
Unknown
Chambres
4
STRUCTURE
木造
SURFACE HABITABLE
158.16 m²
SURFACE DU TERRAIN
424.97 m²
RÉGIME FONCIER
Propriété pleine
ZONAGE
Résidentiel
ÉTAGE
2
PARKING
—
POTENTIEL MINPAKU
Incertain
Gare la plus proche
Aéroport
Onsen / Source chaude
Supermarché
Épicerie de proximité
Hôpital / Clinique
Plan

Source :Voir l'annonce d'origine
Chargement...
Total estimé (frais inclus): $76,701
17 vues
Disponible
...
