

















Disponible
6K Mise en page Ville de Nantan Préfecture de Kyoto
Chargement...
Total estimé (frais inclus): $55,365
10 vues
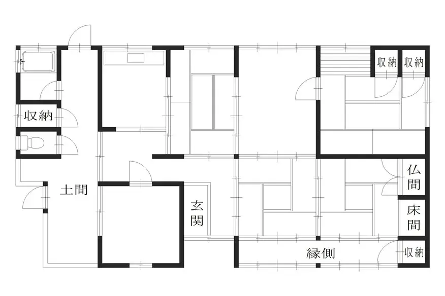
Cette propriété, située dans la ville de Nantan, préfecture de Kyoto, offre une spacieuse disposition 6K. Avec une surface de bâtiment de 76,69 mètres carrés et une superficie généreuse du terrain de 144,64 mètres carrés, cette structure en bois offre un environnement de vie tranquille. L'année de...
Caractéristiques
ANNÉE DE CONSTRUCTION
Unknown
Chambres
6
STRUCTURE
木造
SURFACE HABITABLE
76.69 m²
SURFACE DU TERRAIN
144.64 m²
RÉGIME FONCIER
Propriété pleine
ZONAGE
Résidentiel
ÉTAGE
—
PARKING
—
POTENTIEL MINPAKU
Incertain
Gare la plus proche
Aéroport
Onsen / Source chaude
Supermarché
Épicerie de proximité
Hôpital / Clinique
Plan

Source :Voir l'annonce d'origine
Chargement...
Total estimé (frais inclus): $55,365
10 vues
Disponible
...
