






Disponible
6DK Propriété Ville de Matsusaka Préfecture de Mie
Chargement...
Total estimé (frais inclus): $27,532
7 vues
1 favori
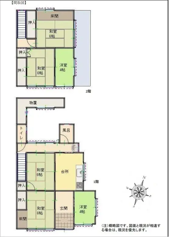
Cette maison individuelle de 6DK, située dans la ville d'Otsu, ville de Matsusaka, préfecture de Mie, présente une opportunité attrayante pour ceux qui recherchent une résidence familiale fonctionnelle. Construite en 1976 avec une charpente en bois durable, la propriété s'étend sur une surface habit...
Caractéristiques
ANNÉE DE CONSTRUCTION
1976
🔴
Pre-1981 seismic standard
Chambres
6
STRUCTURE
木造
SURFACE HABITABLE
95.68 m²
SURFACE DU TERRAIN
104.23 m²
RÉGIME FONCIER
Propriété pleine
ZONAGE
Résidentiel
ÉTAGE
2
PARKING
—
POTENTIEL MINPAKU
Incertain
Gare la plus proche
Aéroport
Onsen / Source chaude
Supermarché
Épicerie de proximité
Hôpital / Clinique
Plan

Chargement...
Total estimé (frais inclus): $27,532
7 vues
1 favori
Disponible
...
