


Disponible
Propriété Akiya Ville de Kuwana Préfecture de Mie
Chargement...
Total estimé (frais inclus): $112,573
4 vues
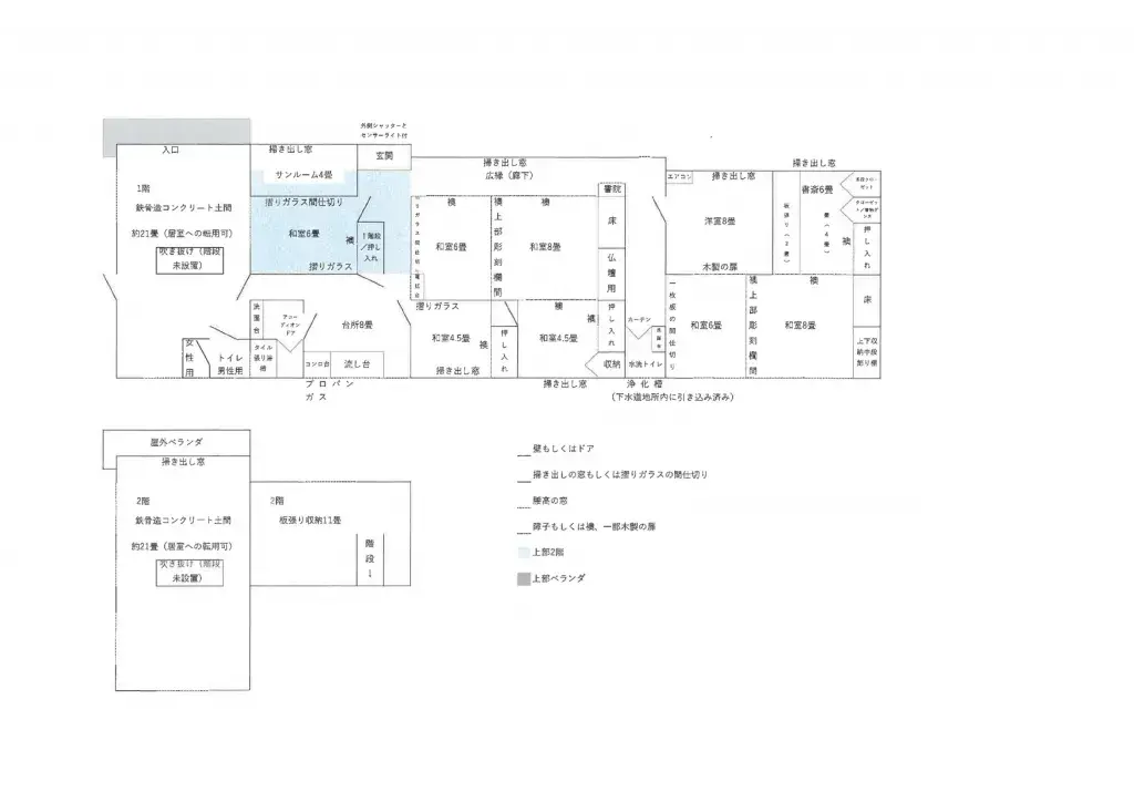
Cette propriété substantielle est située dans la ville de Kuwana, préfecture de Mie, offrant une superficie de terrain importante de 1040,06 mètres carrés. Le bâtiment principal comprend une généreuse surface habitable de 354,27 mètres carrés, offrant amplement d'espace pour diverses fonctionnalités...
Caractéristiques
ANNÉE DE CONSTRUCTION
1968
🔴
Pre-1981 seismic standard
Chambres
-
STRUCTURE
その他 木造2階建て・鉄骨造2階建て
SURFACE HABITABLE
354.27 m²
SURFACE DU TERRAIN
1040.06 m²
RÉGIME FONCIER
Propriété pleine
ZONAGE
Résidentiel
ÉTAGE
2
PARKING
—
POTENTIEL MINPAKU
Incertain
Gare la plus proche
Aéroport
Onsen / Source chaude
Supermarché
Épicerie de proximité
Hôpital / Clinique
Plan

Chargement...
Total estimé (frais inclus): $112,573
4 vues
Disponible
...
