
Disponible
2LDK Ville de Takayama Préfecture de Gifu
Chargement...
Total estimé (frais inclus): $76,701
6 vues
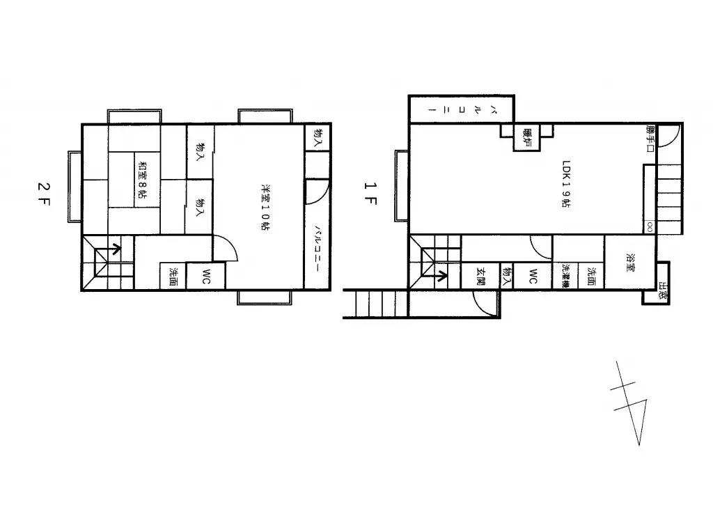
Cette maison en bois de 2LDK, construite en 1991, offre une disposition de vie très pratique avec une surface de bâtiment totale de 96,05 mètres carrés. La résidence dispose d'une salle de bain et est conçue dans un souci de fonctionnalité, garantissant un environnement de vie stable et confortable....
Caractéristiques
ANNÉE DE CONSTRUCTION
1991
Chambres
2
STRUCTURE
木造
SURFACE HABITABLE
96.05 m²
SURFACE DU TERRAIN
1050 m²
RÉGIME FONCIER
Propriété pleine
ZONAGE
Résidentiel
ÉTAGE
2
PARKING
—
POTENTIEL MINPAKU
Incertain
Gare la plus proche
Aéroport
Onsen / Source chaude
Supermarché
Épicerie de proximité
Hôpital / Clinique
Plan

Source :Voir l'annonce d'origine
Chargement...
Total estimé (frais inclus): $76,701
6 vues
Disponible
...
