
Disponible
5DK Propriété Ville de Takayama Préfecture de Gifu
Chargement...
Total estimé (frais inclus): $47,021
8 vues
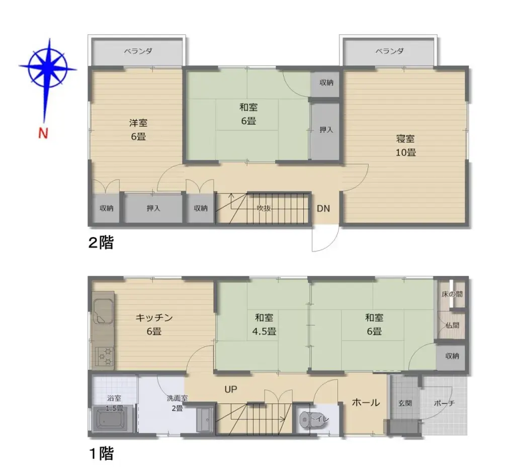
Cette maison en bois de 5DK, construite en 1989, est située à Kamiokamoto-cho, dans la ville de Takayama, préfecture de Gifu. Elle offre une superficie totale de 100,27 mètres carrés sur un généreux terrain de 125,54 mètres carrés. L'agencement pratique de 5DK offre un espace suffisant, adapté aux f...
Caractéristiques
ANNÉE DE CONSTRUCTION
1989
Chambres
5
STRUCTURE
木造
SURFACE HABITABLE
100.27 m²
SURFACE DU TERRAIN
125.54 m²
RÉGIME FONCIER
Propriété pleine
ZONAGE
Résidentiel
ÉTAGE
2
PARKING
—
POTENTIEL MINPAKU
Incertain
Gare la plus proche
Aéroport
Onsen / Source chaude
Supermarché
Épicerie de proximité
Hôpital / Clinique
Plan

Source :Voir l'annonce d'origine
Chargement...
Total estimé (frais inclus): $47,021
8 vues
Disponible
...
